3D Presentation.

SEE THE VIDEO

TEIVA 2 —

House with a living room, kitchen/dining area, a bedroom with a dressing room, a bathroom, and a separate toilet, as well as a large covered terrace.

Total surface area: 82 m².
Including 23 m² of covered terrace.

Completely built using our construction principle and materials (click to learn more)..

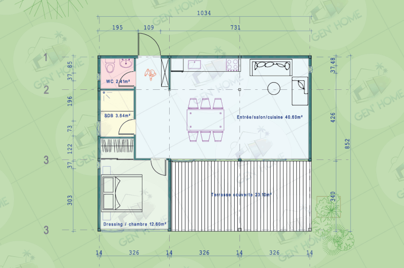
3D Floor plan view


Layout and dimensions of the rooms in the model. Non-contractual photo showing an example of color options.

Each element (wall cladding, deck, floors, facade) can be fully customized by the client.
The material catalog is available for consultation at our offices.

Please contact us for more information.

Kitchen / Living room

41 m²

Dressing

1.5 m²

Toilets

2.5 m²

Bathroom

3 m²

Bedroom

11 m²

TERRACE

23 m²

TOTAL SURFACE 

82 m²

Non-binding plan: our houses are customizable.